For this project, the client required detailed layouts that the owner would be able to review, understand, and approve for installation. We were able to tailor the design exactly to the owner's requests, allowing for a smooth installation minimizing changes.
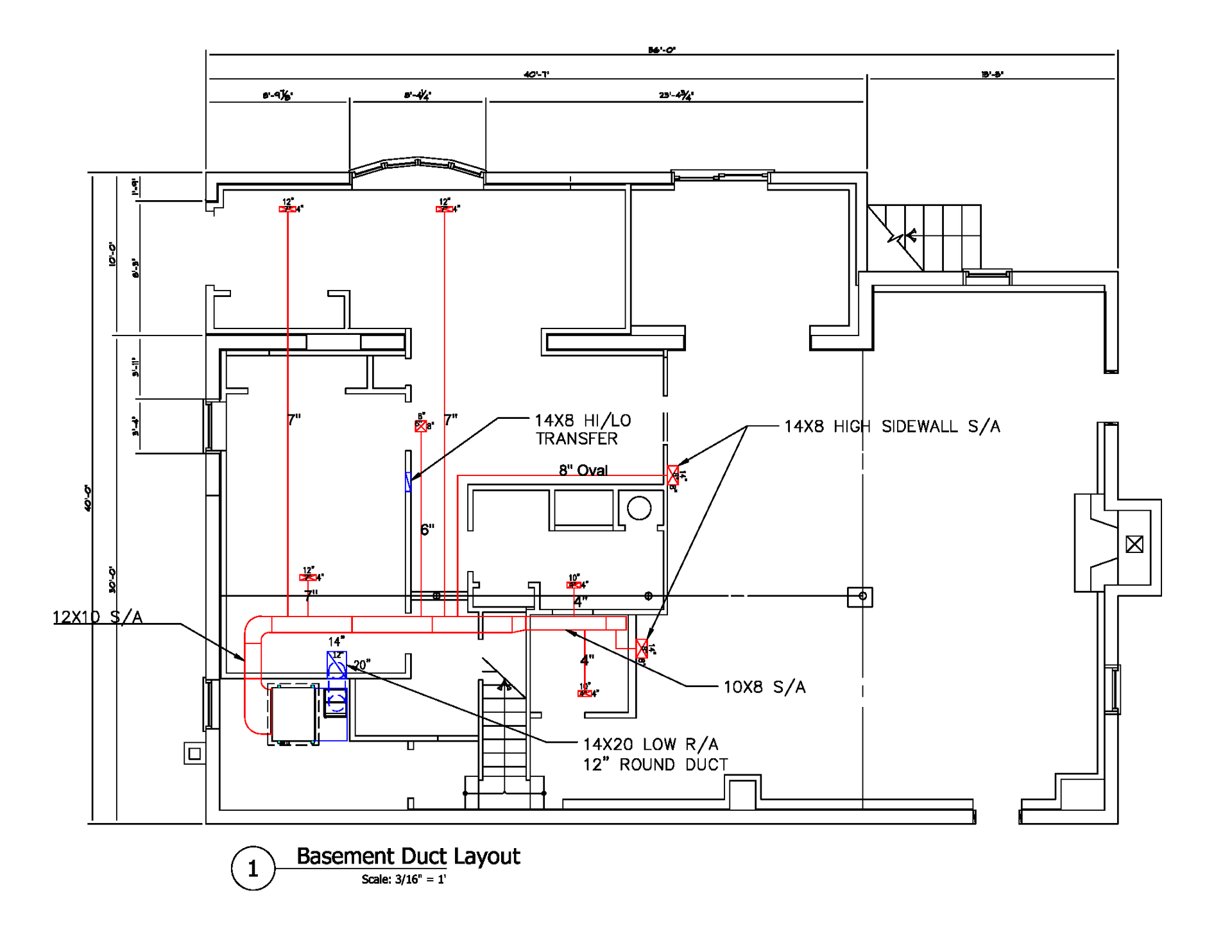
A simple basement utilizing a concealed ducted air handler and cold climate heat pump. The installation team was able to easily follow the diagram and the builder was impressed with the implementation.
For this project, the client wanted a contemporary design to convert an old automotive shop into a furniture store. We designed a spiral duct system for an industrial look.
An attic duct layout incorporating a variable speed furnace along with an energy recovery ventilator. We color code the drawings to make them easy for anyone to read.
A basement furnace and duct layout. This drawing allows an installation manager or foreman to easily fabricate the correct amount of ductwork.
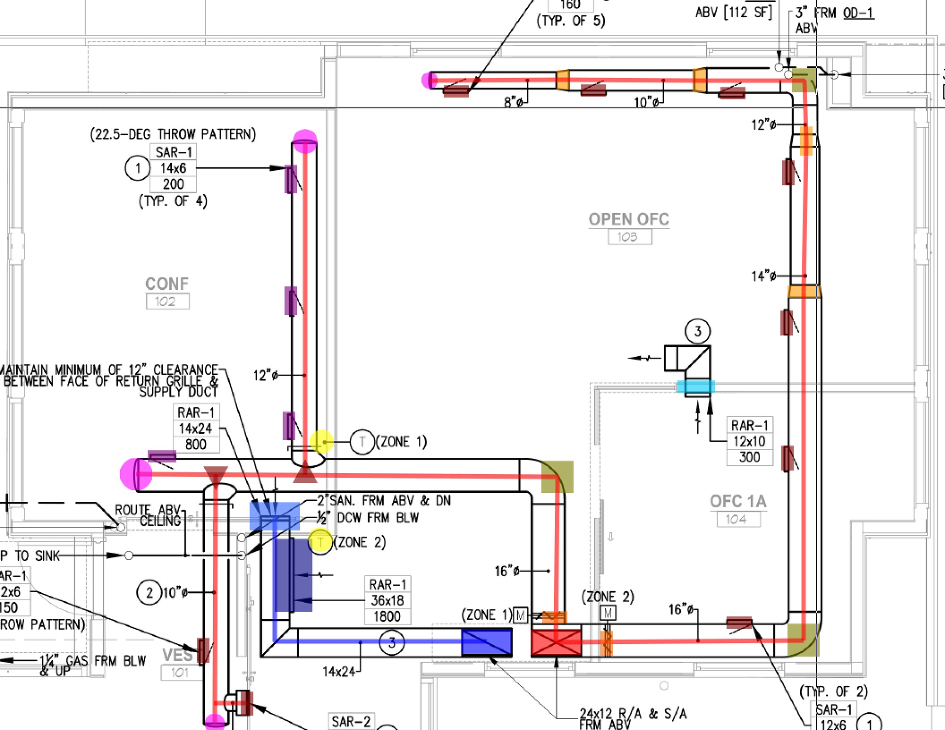
This layout details a 10-ton rooftop unit ducted to a clean room. The owner was able to dictate his intended design, U Innovations delivered a simple and effective duct layout.
We utilize PlanSwift© to provide detailed material estimation. This project called for spiral duct and diffusers. U Innovations created a detailed spreadsheet to form an accurate bid.
After performing a Manual J and S calculation using WrightSoft©, the next step is to create a basic duct layout which is used for Manual D documentation.
Another neatly designed duct layout using WrightSoft© to provide the Manual D calculation.